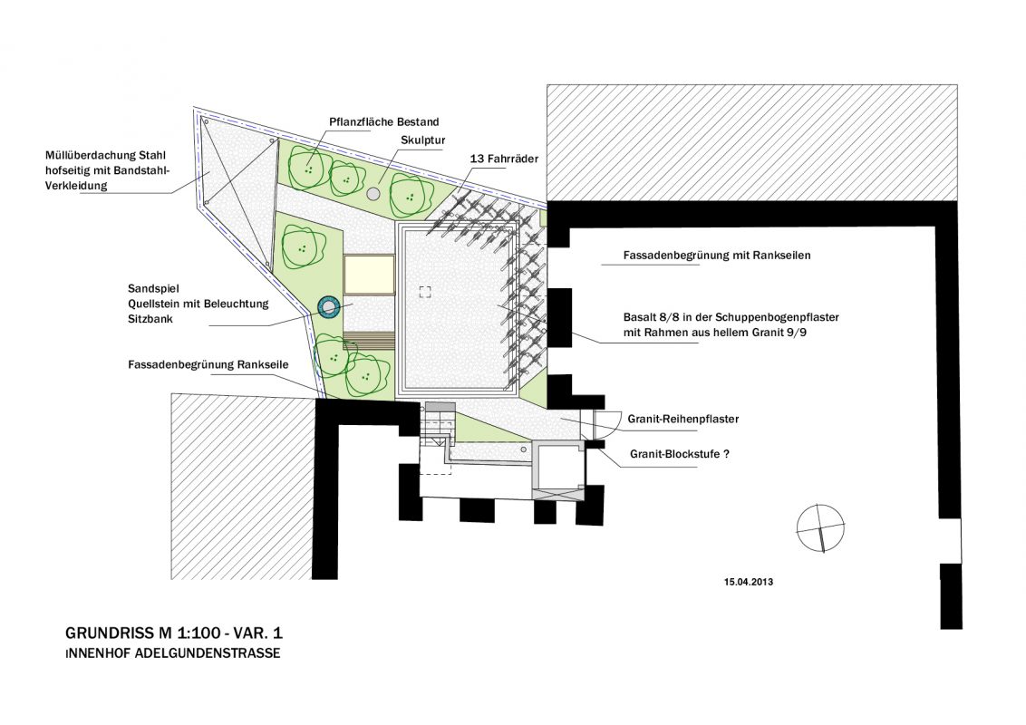
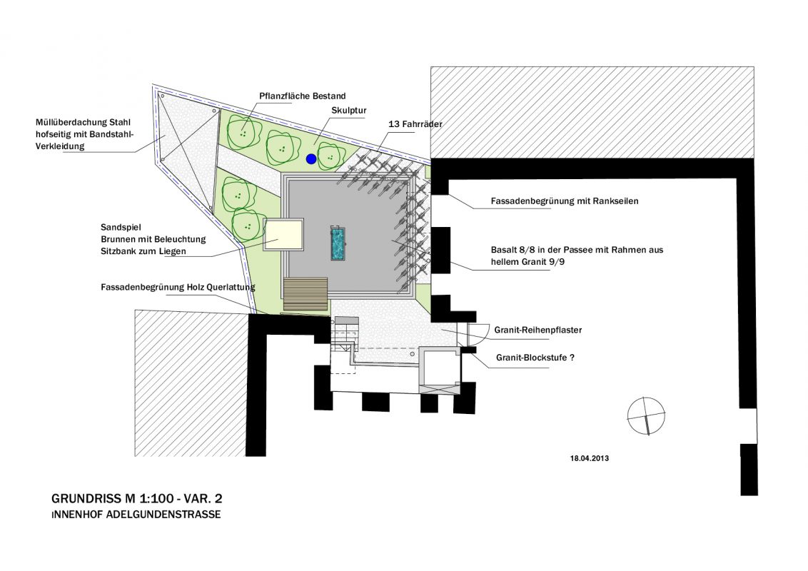
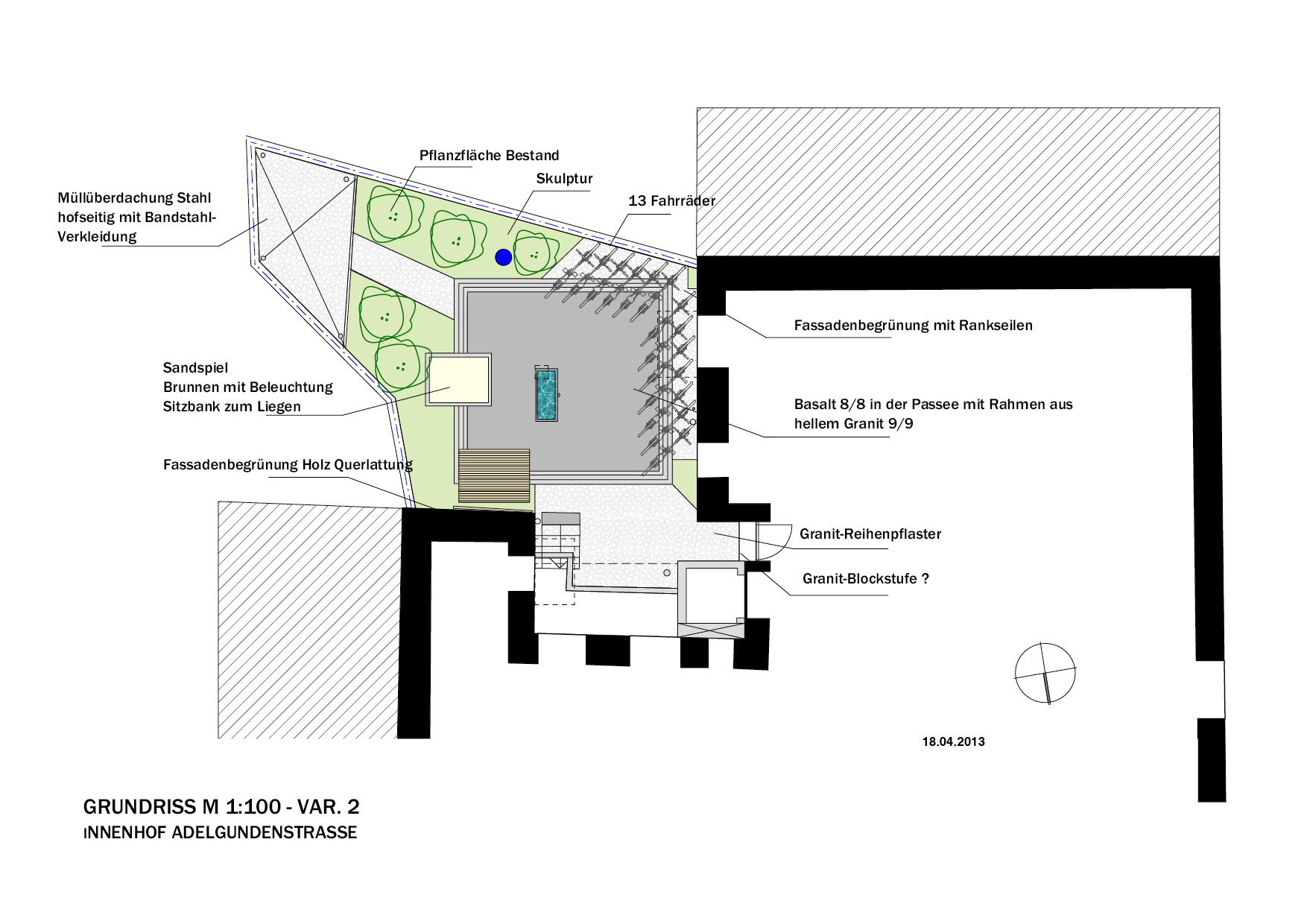
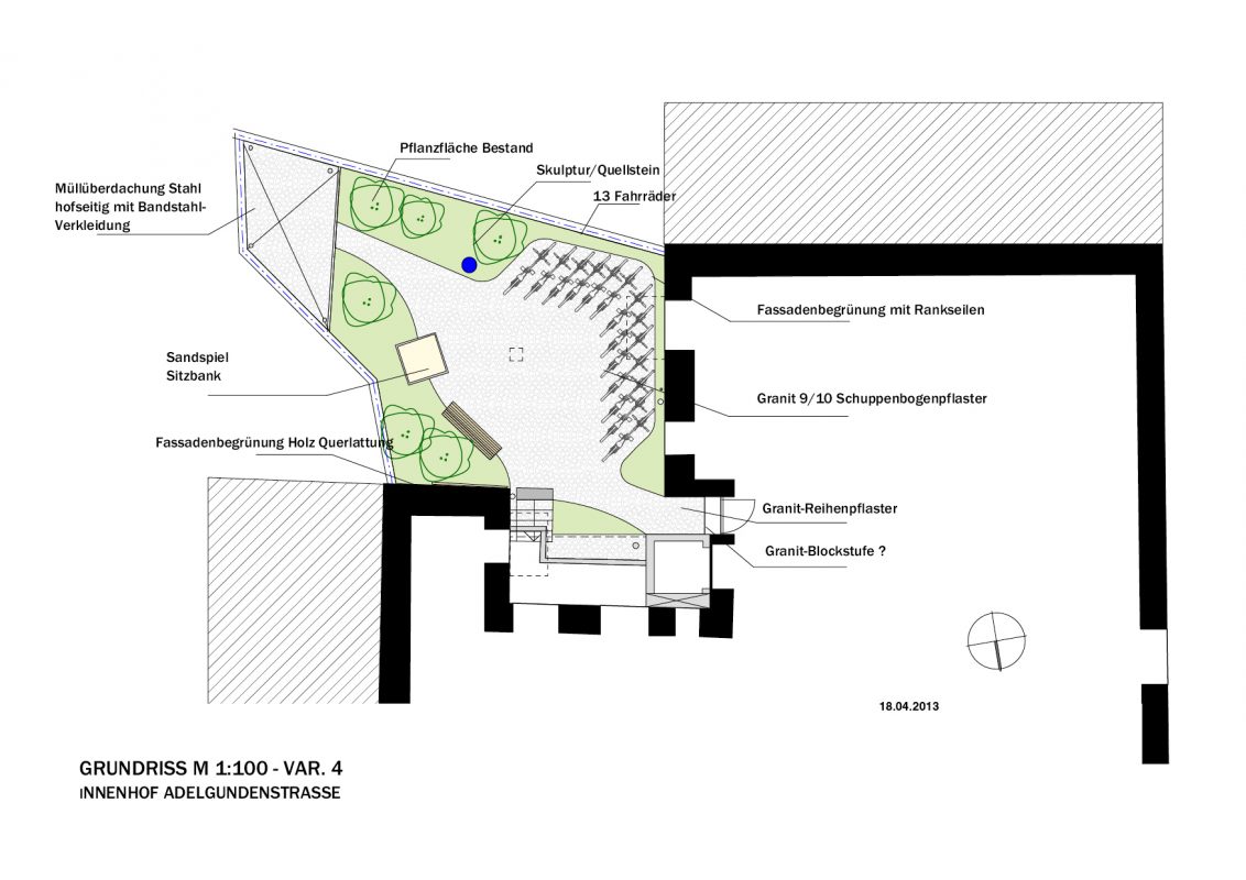
Dieser winzige, schattige Innenhof ist von einer prächtigen Rot-Buche überstellt. Nach Abschluß der Fassadenrenovierung wurde der Innenhof umgestaltet. Die hochwertige, elegante Gestaltsprache des Gebäudes wurde durch die Pflasterfläche aus Basaltstein mit einer weißen Marmorsteineinfassung fortgesetzt. Die Mitte des Hofes bildet ein Buchsbaum-Karree. Das Rankgitter zum Müllunterstand wurde neu errichtet und nimmt die Formensprache des vorhandenen Zaunes auf. Der Zaun wird mit immergrünen Sträuchern vorgepflanzt und mit Kletterpflanzen berankt, welche als Sichtschutz in die angrenzenden Höfe dienen.
- Fläche ca. 70 m²
- Aufgabengebiet Entwurfskonzeption und Baubegleitung
- Planung und Ausführung 2013
- Bilder Privat






